








旋振筛(三次元振动筛)特点:
旋振筛由直立式电机作激振源,电机上、下两端安装有偏心重锤,将电机的旋转运动转变为水平、垂直、倾斜的三次元运动,再把这个运动传递给筛面,使物料在筛面上做外扩渐开线运动,故该系列振动筛也被称之三次元振动筛。旋振筛具有物料运行的轨迹长,筛面利用率高等优点,调节上、下两端重锤的相位角,可改变物料在飾面上的运动轨迹,可以对物料进行精筛分、一般筛分、概率筛分、特殊筛分。

旋振筛工作原理
旋振筛(三次元振动筛)优点:
1. 筛分精度高、效率高、任何粉、粒、粘液类均可使用。
2. 体积小,重量轻、移动方便、出料口方向可任意调整。
3. 筛网使用长久,清洗和更换网方便。
4. 操作方便,杂质和粗料可自动排出。
5. 清网方式:弹力球、超声波。
旋振筛(三次元振动筛)适用于粒、粉、粘液等物料的筛分过滤。广泛应用于食品行业、制药行业、造纸行业、砂石行业、陶瓷行业、化工行业、涂料行业、橡胶行业等。


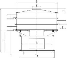
型号 | XZS-400 | XZS-600 | XZS-800 | XZS-1000 | XZS-1200 | XZS-1500 | XZS-1800 |
有效筛分直径 (mm) | 340 | 540 | 730 | 900 | 1100 | 1400 | 1700 |
筛网目数 (mm) | 2-500 | ||||||
筛机层数 | 1--5 | 1--3 | |||||
电机功率 | 0.18 | 0.25 | 0.55 | 0.75 | 1.1 | 2.2 | 4 |
外形尺寸 | |||||||
A | 330 | 530 | 680 | 800 | 985 | 1190 | 1540 |
B | 305 | 430 | 580 | 700 | 855 | 1050 | 1440 |
C | 240 | 240 | 240 | 240 | 400 | 400 | 400 |
D | 400 | 600 | 800 | 970 | 1170 | 1470 | 1770 |
E | 80 | 100 | 125 | 150 | 180 | 200 | 200 |
F | 70 | 70 | 90 | 100 | 120 | 120 | 120 |
G | 320 | 430 | 540 | 645 | 750 | 930 | 1025 |
I | 390 | 420 | 435 | 445 | 555 | 556 | 680 |
H 1 层 | 635 | 780 | 850 | 865 | 1035 | 1070 | 1225 |
H 2 层 | 770 | 897 | 1000 | 1015 | 1205 | 1250 | 1395 |
H 3 层 | 870 | 1013 | 1150 | 1165 | 1375 | 1425 | 1560 |
注 : 本司可根据客户现场实际需求设计制造非标型号规格筛机。
本司对所有技术资料及尺寸保留修改权利,如实物与资料不符以实物为准。
